Tworzymy architekturę oraz wnętrza, które inspirują. Jako biuro architektoniczne łączymy sztukę, design i technologię, dzięki czemu każda przestrzeń staje się wyrazem harmonii, innowacji i świadomego podejścia do współczesnych potrzeb.
Ten trzykondygnacyjny dom został precyzyjnie wpisany w naturalny stok, dzięki czemu każda część budynku otrzymała swoją wyjątkową funkcję i widok. W piwnicy, mimo że to poziom częściowo “zakopany”, jedna ze ścian znajduje się na pełnej ekspozycji, co pozwoliło umieścić tam siłownię z panoramicznym widokiem. Ponadto w kondygnacji piwnicy znajduje się garaż, kotłownia, łazienka i pomieszczenie gospodarcze. Parter mieści strefę dzienną, czyli salon, kuchnię ze spiżarnią, a także łazienkę oraz dodatkowy pokój, a duże przeszklenia otwierają wnętrza na malowniczy krajobraz. Na poddaszu zlokalizowano dwie sypialnie, łazienkę, pralnię oraz sypialnię z garderobą. Do wejścia prowadzi charakterystyczna kładka, rozwiązanie często spotykane w lokalnej zabudowie, zwłaszcza tam, gdzie konieczne jest przekroczenie cieku wodnego. Elewacja od strony ulicy jest niemal całkowicie zabudowana, co zapewnia mieszkańcom pełną prywatność.
ARCHITEKT: Julia Bury
LOKALIZACJA: Wola Krogulecka
POWIERZCHNIA: 263m²









Projekt dwóch kluczowych stref w luksusowym domu w Krakowie: kuchni i gabinetu. Koncentracja na designie premium i nietuzinkowych rozwiązaniach. Estetyka spójna z charakterem rezydencji, podkreślona użyciem szlachetnych materiałów – naturalnego drewna i kamienia, a także akcentów kolorystycznych i odważnych form.
ARCHITEKT: Julia Bury
LOKALIZACJA: Kraków
POWIERZCHNIA: 40m²





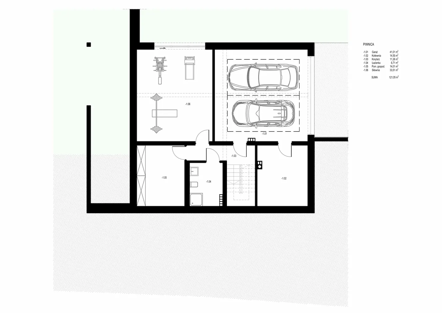
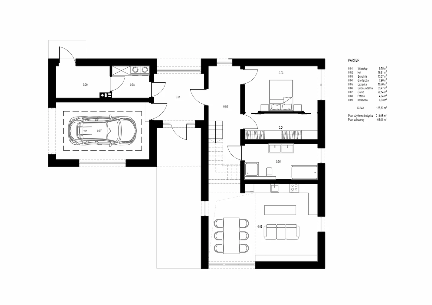
Dom zaprojektowano jako klarowną kompozycję dwóch przenikających się skrzydeł – lewego skrzydła technicznego oraz prawego skrzydła mieszkalnego. W części technicznej zlokalizowano garaż, kotłownię i pralnię. To skrzydło otrzymało również możliwość późniejszej adaptacji poddasza na strych, co zwiększa elastyczność użytkową budynku. Prawe skrzydło mieści strefę dzienną oraz część nocną dla rodziców. Salon połączony z jadalnią tworzy duże, jasne wnętrze, otwarte na dwie kondygnacje ponad częścią jadalnianą, co podkreśla reprezentacyjny charakter tej przestrzeni. Obok umieszczono kuchnię, a także sypialnię z własną garderobą oraz łazienkę. Na poddaszu znajdują się dwa pokoje, otwarta przestrzeń wypoczynkowa z widokiem na jadalnię oraz wyjście na taras, stanowiący wyjątkowe przedłużenie piętra i miejsce do obserwowania otoczenia. Cały układ funkcjonalny czytelnie rozdziela strefy techniczne i mieszkalne, a wysoka przestrzeń nad jadalnią oraz przeszklone elewacje budują nowoczesny i lekki charakter domu.
ARCHITEKT: Julia Bury
LOKALIZACJA: Nowy Sącz
POWIERZCHNIA: 219m²









Julia Bury - założycielka pracowni PRZEŁOM.STUDIO
Absolwentka Wydziału Architektury Politechniki Krakowskiej oraz Universidad de Alicante. Po latach pracy w biurach architektonicznych zdobyła szerokie doświadczenie w projektowaniu wnętrz i architektury. Od 2025 roku posiada uprawnienia budowlane w specjalności architektonicznej do projektowania bez ograniczeń.
Architektka łączy wiedzę inżynierską z wrażliwością na precyzyjny, innowacyjny design. Inspirują ją nowe perspektywy, podróże i surfing — zawsze w poszukiwaniu dobrego jedzenia, fal i matchy.
Jej projekty są odważne, ale wyważone, tworzone z szacunkiem dla rzemiosła. W przełamywaniu konwencji i autentyczności PRZEŁOM.STUDIO odnajduje przestrzeń dla wyjątkowych realizacji swoich klientów.
Wypełnij formularz i opisz krótko swój projekt – przygotujemy dopasowaną wycenę oraz zaproponujemy możliwe kierunki współpracy. Jesteśmy tu, żeby pomóc przełożyć Twoją wizję na konkretną przestrzeń.